河南蚁族装饰工程有限公司服务热线400-066-6292

装修图纸看法解析 装修技巧大全介绍

添加时间:2021-12-4 11:23:59 浏览量: 作者:蚁族装饰工程 来源:www.yizuzs.com

业主将装修包交给装修公司时,装修公司会先设计装修图纸,大多数业主不会看装修图纸,所以参与装修设计时会有很多不便,业主在装修房子前要了解装修技巧,这样装修才能达到满意的效果。接下来用小编了解一下装修图纸是什么样的,装修技巧是什么。

河南蚁族装饰工程有限公司专注连锁店铺装修15年致力于连锁品牌社会价值

业主将装修包交给装修公司时,装修公司会先设计装修图纸,大多数业主不会看装修图纸,所以参与装修设计时会有很多不便,业主在装修房子前要了解装修技巧,这样装修才能达到满意的效果。接下来用小编了解一下装修图纸是什么样的,装修技巧是什么。

 

一、装修图纸

 

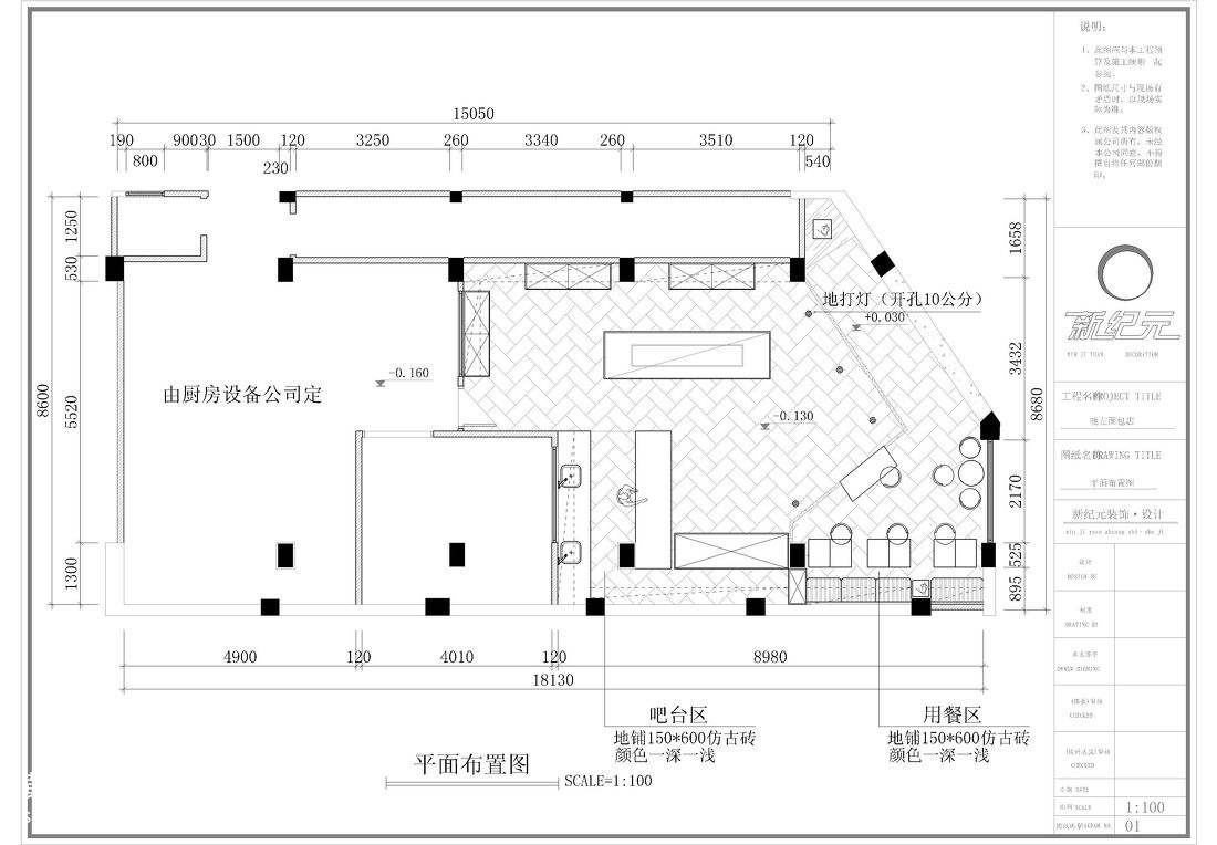
1、图纸目录。包含哪些图纸的列表,及页码。

 

2、设计说明。介绍房屋的基本情况及设计师根据房屋的结构为业主量身设计的房子。

 

3、原始平面图。需要精准的标注梁柱、室内尺寸、门窗、地漏位置等。把测量好的房子进行第一步的制图,图纸上要求标明房子的原来尺寸,方便设计师、施工人员还有客户对房型有基本了解,使得后期的流程能顺利进行。

 

4、平面设计图。针对我们要施工的对象所设计的平面图。

 

5、天花吊顶图。把整个顶面的平面画出来,在图纸上做标明,比如标明灯具的位置,天花板的造型尺寸,定位,大小等,有了这些,施工人员在施工前才能知道安装灯具的距离,尺寸以及材料,这是很重要图纸。

 

6、地面铺砖图。对每个房间的尺寸,周长都要标记清楚,可以让施工人员在进行地面的铺贴会方便些,同时也方便了客户自身对装修地面的了解,在地砖的采购上会有一定的估算。

 

7、水电图。水电工程是一项隐蔽工程,因此水电图也非常重要,它主要标明水电走向,还有就是标明强弱电箱在哪里,细分的话就是开关、灯具、插座布置图。

 

二、装修图纸装修技巧

 

1、宽敞化,对于客厅样板间装修来说,制造宽敞的感觉是一件重要的要素,不管固有的空间是大还是小,在室内设计中都需要注意这点。宽敞的感觉可以带来轻松的心境和欢愉的心情。高度化,不管是否做人工吊顶,都必须确保空间的高度性,客厅是家居主要的公共活动空间,在装修手法上可以使用各种视错觉处理。

 

2、景观化,在设计中,必须确保从哪个角度所看到的客厅的美感,对于吸引消费者的样板间来说,这也包括了主要视点向往所看到的室外风景的美观度。客厅的装修应是整个居室很为漂亮或很有个性的一个。

 

3、照明效果,也许在一些实际活动中(例如看电视什么的)并不需要很亮的光线,但在其他的曰常居住活动中,亮光是不可缺少。客厅应是整个居室,光线(不管是自然采光或人工采光)较亮的一个,当然这个亮点是相对的。

上一篇:专卖店装修设计应从那个方面入手(二)

下一篇:装修扫盲之学会签订合同


【返回列表】 / 【首页】

本文标题:装修图纸看法解析 装修技巧大全介绍

本文链接:https://www.yizuzs.com/news/show-1164.html

Tags:装修,装修技巧,装修图纸

河南蚁族装饰工程有限公司专注连锁店铺装修15年致力于连锁品牌社会价值


特别声明:除特别标注,本站文章均为原创,本站文章原则上禁止转载,如确实要转载,请电联:13343719768,尊重他人劳动成果,谢过~

相关资讯

  • 一人一台的呷浦火锅

    随着独居经济的兴起,“一人食”市场需求开始扩张,餐饮业2021年“一人食”产品数量同比增长超1倍。呷哺呷哺主打的“一人一锅”迎合了消费者对健康、便捷的需求,成为了突围行业激烈竞争的“利刃”。今天我们一起来看下:

    2023-3-14 9:57:43
  • 一家有态度的粥店-江川右

    近年来,随着消费者生活条件的不断改善,对普通快餐的要求也越来越高,在追求快餐速度的同时,也在追求质量和营养,健康营养的快餐成为消费者的新选择。江川右粥店是一家专注为消费者提供养生粥的店,所经营的美食系列丰富多样,爱获得了顾客们青睐的同时,还有各种特色产品,满足消费者口味需求。为啥那么受欢迎,今天跟着蚁族小编来看下吧:

    2023-3-13 10:44:52
  • 以“恰好鱼见你”为代表的酸菜鱼凭什么成为快餐新宠

    众所周知,随着社会经济的迅速发展,上班族解决一顿午餐时更多居然是“将就”的点外卖或者吃着油腻的快餐。恰好鱼见你酸菜鱼米饭,一个人也能吃鱼,这对于生活节奏快的上班族、白领、学生都有非常大的诱惑,利用短暂的休息时间吃一顿美味,专为解决年轻人吃好一顿饭的问题!今天蚁族小编带大家一起来看下:

    2023-3-12 10:40:45
  • 令无数吃货们着迷的——姐弟俩土豆粉

    疯狂的螺蛳粉、诱人的勾魂米线,粉面品类以其较高的国民认知度,和庞大的消费群,在快餐赛道有着较高优势。然而,在激烈的社会竞争现状中,有一个正在低调突围——“姐弟俩土豆粉”。今天跟着蚁族小编来看下吧:

    2023-3-11 10:22:11
  • 火爆的特色小吃:阿甘锅盔

    步行在美食街,各种小吃层出不穷,花样多的令人眼花缭乱。大多数的小吃即使有着美丽的外观、诱人的色泽,留给人们的记忆却仅仅只有一刹那,转身就成了过眼云烟;而阿甘锅盔却凭借其美味的口感和匠心品质,成为了大众最喜爱的小吃之一。仅靠一张饼,阿甘锅盔如何完成千店布局?今天蚁族小编带大家看看:

    2023-3-10 10:14:53
  • 1年卖出1000万份,凉皮先生是怎么做到的?

    小吃快餐是餐饮市场的最大品类,无论在一线、新一线城市,还是在二、三线城市,小吃品类崛起的速度非常快。凉皮,起源于陕西关中地区的传统美食,是擀面皮、面皮、米皮、酿皮的统称。今天蚁族小编带大家来看看:

    2023-3-9 9:29:25
  • 一碗连汤都不能放过的渔粉

    中国的文化历史长远,美食的传承也必不可少。近几年,消费者对于美食不仅仅停留在美味表层,而是更加深入到内里之中,追求更为绿色、健康、养生的美食。今天我们就来说一个从三国时期传承下来的美食品牌,它就是五谷渔粉。

    2023-3-8 13:52:08
  • 年轻人都喜欢吃的麻辣烫——小谷姐姐

    无辣不欢的麻辣烫已经成为众多吃货们非常喜欢的一种美食了,基本上每一位消费者在面对麻辣烫的麻辣诱惑,都会忍不住想要立马吃到嘴里。就像近几年比较火的“小谷姐姐”麻辣烫,大家并不陌生吧,它可以根据自己口味的需求进行挑选食材,同时多种口味的需求也为消费者们带来了非常不错的美味舌尖体验,今天蚁族小编就带大家看看:

    2023-3-7 11:42:36

设计大师

装修该花多少钱?免费报价/快速报价

服务热线

400-066-6292

13526824338

功能和特性

价格和优惠

获取内部资料

扫一扫联系微信客服

扫一扫联系微信客服